Планировка разводки труб в ванной квартиры хрущевки: советы и рекомендации — MoskovDom.ru
На сайте MoskovDom.ru опубликована статья о разводке труб в ванной хрущевки. В статье рассказывается о том, как правильно провести разводку труб, чтобы избежать проблем с водоснабжением и канализацией. Если вы хотите узнать больше о разводке труб в ванной хрущевки, обязательно прочитайте эту статью!
Правильно выбираем трубы на замену в хрущёвку
Правильно выбираем трубы на замену в хрущёвку

Выбор труб начинается с проекта. Не обязательно делать точный чертёж. Нужна схема установки с указанием размеров и расположением всех вспомогательных элементов.

Это поможет рассчитать, сколько и каких труб надо купить.
- Общедомовые коммуникации
- Кухонная мойка 40
- Маркировка
- Советы специалистов
Как правильно начать?
Не стоит брать пример с тех, кто предпочитает делать все «на глазок». Начать следует с проекта будущей разводки. Это может показаться лишним и даже слишком сложным, но, тем не менее, такой проект необходим.
С его помощью можно точно определить оптимальное место для каждого сантехнического прибора, подобрать необходимые детали и элементы трубопроводов и определить их расход.
Начать выполнять проект рекомендуется со списка сантехнического оборудования, которое планируется разместить в санузле. Важно знать, что если в доме туалет и ванная комната разделены, нужно выполнять проект разводки для обоих помещений. Это объясняется тем, что их коммуникации связаны и не могут быть смонтированы обособлено.
Определившись со списком сантехники, следует пометить, какие трубы нужно подвести к каждому из устройств.

Ориентироваться можно на такую схему:
- Ванна любого типа или душевая кабинка. Подключается холодное, горячее водоснабжение, а так же канализация.
- Умывальник-раковина. Подводится канализация, горячий и холодный водопровод.
- Биде. Соединяется с трубопроводом горячего, холодного водоснабжения и с канализацией.
- Унитаз. Подключается холодная вода и канализационная магистраль.
- Стиральная машинка. Подводится канализация и холодное водоснабжение.
На следующем этапе нужно построить схему-основу будущего проекта. Для этого выполняются точные замеры помещения, по которым впоследствии строится схема. Ее желательно выполнять на миллиметровке в подходящем масштабе.
Все размеры должны быть точно соблюдены. Это важное условие выполнения грамотного проекта. Точно также измеряются все сантехнические приборы. Их размеры нужны для того, чтобы максимально точно «вписать» оборудование в помещение.
Если пока еще нет окончательного решения относительно места расположения сантехники, можно поступить следующим образом. На бумаге точно по произведенным замерам в соответствии с масштабами помещения выстраивают схематическое изображение каждого сантехнического прибора.
Лекало вырезают, и полученные фигуры располагать на полу, добиваясь оптимальной расстановки приборов.

При этом нужно учесть следующие требования. Первым от канализационного стояка традиционно устанавливается унитаз. Оптимально, чтобы его выпуск посредством фитинга соединялся со стояком. Большое расстояние от стояка, а тем более наличие в трубопроводе поворотов будет провоцировать засоры и не позволит оборудованию нормально работать.
Сантехнические приборы желательно располагать таким образом, чтобы стоки от них проливались через унитаз. Это станет очень хорошей профилактикой засоров.
Кроме унитаза максимально близко к канализационному стояку рекомендуется размещать ванну или душевую кабинку с низким сливом. Это необходимо для предотвращения возможных проблем с уклоном. Остальное сантехническое оборудование может быть размещено на любом удобном расстоянии.
Кроме того, желательно внимательно изучить техническую документацию на сантехническое оборудование на предмет его подключения. Если предполагается типовой вариант, который предусматривает одноуровневое расположение трубопровода и оси канализационного выпуска прибора, никаких проблем не возникнет.
Если же предполагается нетиповое подключение, следует подготовиться ко всем его особенностям.
Чаще всего вариации в подключении могут быть у унитазов. В зависимости от модели их слив может быть прямым или наклонным, а так же направляться в сторону пола или стены. Технология установки унитаза с косым выпуском имеет свои особенности.
Нетипичным может быть подключение душевых кабинок и ванн. Развязки их слива могут иметь разную конфигурацию. Все эти особенности необходимо учесть еще на этапе проектирования.

После того, как места установки сантехники фиксируются, начинается работа с размещением подходящих к ним трубопроводов. Масштаб схемы должен строго соблюдаться, только так удастся выполнить правильную разводку труб в ванной.
Важный нюанс. Занимаясь «расстановкой» сантехники и мебели, не нужно забывать о том, что все двери в помещении должны свободно открываться и к каждым устройством должно быть удобно пользоваться.
Инструменты и материалы
Разобравшись, как устроена канализация в хрущевке, можно переходить к следующим действиям. Надо запастись необходимыми инструментами и материалами. Для того, чтобы поменять трубы, надо приготовить:
- болгарку с отрезным кругом по металлу;
- молоток и зубило;
- длинную и прочную отвертку;
- линейку или рулетку;
- строительный уровень.
Кроме этого, понадобятся материалы:
- пластиковые трубы диаметром 50 и 100 мм;
- отводы и тройники для подключения сантехники;
- ревизионный люк для установки на стояк;
- набор хомутов для крепления вертикальных и горизонтальных участков;
- герметик, смазка для облегчения соединения труб.
Для того, чтобы не забыть никакие детали и не ошибиться при покупке элементов канализации, рекомендуется составить сборочный чертеж. Как бы ни была проста канализация в хрущевке, схема поможет наглядно увидеть размеры и длину труб. Кроме того, станет ясно общее устройство участка. Будет видно, где и какие понадобятся фитинги.
Рекомендуется выбирать раструбные элементы серого цвета с резиновым уплотнением. Это самый удобный и надежный вариант, ускоряющий процесс сборки. Если замена стояка не запланирована, понадобится резиновая муфта-переходник с чугуна на пластик. Она устанавливается в раструб чугунного тройника, а в центральное отверстие вставляют пластиковый трубопровод.
Частный дом
Водопровод
В доме актуально абсолютно все, что было сказано о разводке водопровода в квартирах. Для расположенных рядом кухни и ванной оптимальна последовательная схема подключения. Если ванн/санузлов несколько — подумайте о коллекторной разводке. В данном случае она хороша тем, что расход воды на одном смесителе не вызовет падения напора на других.
Важно: чтобы это было именно так — не занижайте диаметр ввода. В идеале ввод до коллектора должен быть выполнен трубой как минимум на шаг толще, чем разводка.
Отопление
В частном доме систему отопления придется создавать с нуля, а раз так — обратимся к основам.
По типу разводки отопление может быть:
- Лучевым (коллекторным). Эта схема подключения дает возможность регулировать температуру всех радиаторов с одного дирижерского пульта. Среди издержек — опять-таки большой расход трубы;
- Двухтрубным. Подача и обратка прокладываются по дому отдельными трубами для отопления; каждый радиатор ставится между ними в качестве перемычки.
Система требует обязательной балансировки, иначе дальние от котла или ввода трассы радиаторы будут холодными. Для балансировки на каждый отопительный прибор ставятся дроссели;

Если не отрегулировать дроссели — вода будет циркулировать только через первые от котла или трассы радиаторы
- Однотрубным (система барачного типа). По периметру дома проходит одна труба для отопления большого диаметра, параллельно которой ставятся отопительные приборы.
Важно: практикуется установка радиаторов не в параллель, а в разрыв трубы. Это величайшая глупость уже хотя бы потому, что в этом случае ненужный радиатор нельзя отключить, не остановив циркуляцию во всей системе.

Плохая идея. Нельзя отключить один радиатор
Мнение автора глубоко субъективно, но, на его взгляд, для одноэтажного дома следует остановиться именно на последнем варианте, а для двух-трехэтажного дома сделать по такому же кольцу на каждом этаже.
Такие системы даже без балансировки никогда не могут быть разморожены зимой; кроме того, они легко монтируются, требуют минимальных затрат на материалы и не перегружают дизайн помещения обилием труб.

А вот здесь все правильно. Сужения трубы там, где она идет параллельно радиатору, не обязательны: вода будет циркулировать через батареи в любом случае. Не забудьте поставить на отопительные приборы воздушники
| Тип труб | Особенности |
| Бухтами | Раструбов нет, поэтому соединения выполняются муфтами. Но обрезков и отходов не остается. |
| Кусками | Кусок трубы вставляется в раструб предыдущего, фитинги применяют только когда нужно изменить направление стоков, при объединении горизонтальных линий и т.п. |
Горизонтальные линии монтируют из труб 50 мм, стояки – из 100 мм.
Для стабильной работы системы после каждой ванны, раковины, стиралки и т.п. (кроме унитаза и душевой кабины) нужно установить сифон гирозатвора. В унитазах и душевых кабинах сифоны установлены по умолчанию.
На криволинейных участках используются стандартные фитинги без резьбы. Рекомендуется монтировать узлы из труб фитингов, а не использовать готовые.
Разводка труб: медная, пластиковая, металлопластиковая
В советское время все коммуникации были стальными и чугунными. Но сегодня в моду вошли медные, пластиковые и металлопластиковые варианты. Рассмотрим каждый в отдельности:
- Медная разводка труб в ванной конечно хороша, но многие сантехники не рекомендуют этот вариант. В месте подсоединения к металлическому стояку может возникнуть гальваносвязь — медь быстро окислится. Многие жиры могут вступить в контакт с медью — это сказывается на пропускной способности. Кроме того, медные соединения, в основном, нужно паять. Есть трубы с резьбовым или фланцевым соединением, но они очень дорогие и доступны немногим.
- Разводка пластиковых труб в ванной выполняется, в основном, с применением двух материалов – поливинилхлорида и полипропилена. Первый годится только для проводки канализации и подключения холодной воды. Горячая жидкость может покоробить их. Из этого материала выполняют сантехнические детали для слива: тройники, угольники (90, 235 град.) и прочее. Разводка труб в ванной из полипропилена применяется в системе водопровода для жидкости любой температуры. Они выполняются с толстыми стенками, поэтому способны противостоять горячей воде. Их отмечают синей и красной продольными полосами.
- Лучше всего разводка металопластика. Между двумя слоями пластмассы проложена алюминиевая фольга, поэтому трубы могут применяться с любыми целями. Но они стоят дорого, поэтому в основном используются в системах отопления.
Классификация
Когда составление наглядного плана завершено, переходим к воплощению его в жизнь. Сложностей с разводкой труб в ванной своими руками не должно возникнуть, если понять как правильно это сделать.

Подбираем подходящую схему подключения:
- С использованием проходных розеток.
- Открытая (все коммуникации видны)
- Коллекторная (параллельное подключение к общей магистральной трубе всех сантехнических устройств).
- Закрытая (все трубы «замуровываются» штукатуркой или скрываются под обшивкой стен)
- Последовательная, с использованием тройников.

Коллекторный вид разводки самый сложный и дорогостоящий. Но его громадное преимущество над последовательным – равномерное распределение воды между работающими приборами, не нужно полностью перекрывать воду в ванной комнате, чтобы провести ремонтные работы.

Что касается эстетики, то открытые водопроводные и канализационные трубы не смотрятся презентабельно в дизайне интерьера. Их можно скрыть под декоративной отделкой или заштукатурить, предварительно уложив в пробитые на поверхности канавки.


Когда они замуровываются в стены или «зашиваются» – возникают сложности с ремонтом (придется разрушать слой штукатурки или снимать панели, чтобы до них добраться), когда они начинают подтекать.

Важно, с самого начала стремиться к герметичности, жестко и прочно соединять все детали трубопровода, использовать гидроизоляцию в местах соединений.

Ремонт ванной комнаты в хрущевке

Надо отдать должное хрущевскому времени, во времена которого миллионы людей смогли переселиться, наконец-то, из коммуналок и бараков в свое собственное жилье и зажить по-человечески. Но если в те далекие времена о лучшем жилье и мечтать не приходилось, то в сравнении с современной планировкой – уж очень мало квадратных метров выделялось квартирам, а в частности и санузлу.
Здесь на помощь приходит множество современных дизайнерских хитростей, призванных наиболее рационально использовать каждый сантиметр площади санузла. Но, как показывает практика, сделать ремонт санузла в хрущевке — задача не из простых. Ведь, кроме того, что помещение должно стать максимально удобным, просторным и функциональным, нужно учитывать еще и пожелания всех жильцов квартиры.
Это значит, что кроме установки ванной или душевой, нужно найти место еще и для стиральной машины, создать достаточно пространства, для того чтобы родители могли выкупать своих детей и т.д.

Для качественного ремонта совмещенного санузла необходимо, прежде всего, разработать проект, и желательно с помощью опытного дизайнера. Это поможет вам совместить комфорт с функциональностью.





Полный ремонт под ключ подразумевает в себе следующие действия:
- замену разводки электричества;
- демонтаж и установление нового стояка, прокладку труб;
- отделочные работы, укладка плитки;
- если есть необходимость – установка подвесных потолков;
- монтаж сантехники (ванны, унитаза, раковины и т.д.);
- — монтаж мебели и дверей.
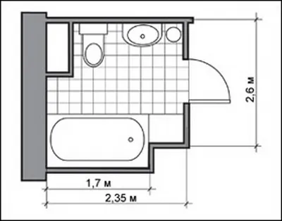
Учитывая, что площадь хрущевского санузла составляет не более четырех кв. м., в ней нелегко совместить все, что должно находиться в ванной комнате современного человека, а именно ванная или душевая, унитаз, раковина, стиральная машина ну и хотя бы маленькие шкафчики.
Рассмотрим несколько способов, которые помогут хоть немножко увеличить драгоценные метры:
- сэкономить пространство поможет замена сидячей ванны на душевую, но этот вариант не всем подходит, особенно если в доме есть маленькие дети;
- если вы предпочитаете все же ванну, то не стоит останавливать свой выбор на слишком больших вариантах, лучше обратить внимание на небольшие или нестандартные варианты;
- бачок для слива можно спрятать в стену, это зрительно увеличит пространство;
- чтобы освободить место можно купить раковину, под которой оборудовано место для стиральной машины. Или же совсем отказаться от стиральной машины в санузле и вынести ее на кухню. Также, можно не устанавливать раковину, а поставить специальный кран над ванной, для того, чтобы можно было умываться;
- традиционные шкафы в ванной лучше заменить отверстиями в стенах, или прозрачными полочками.
Прежде чем начать ремонт в ванной советуем вам поискать подходящие фото в интернете с интерьером, удовлетворяющим ваши критерии. И тогда вам будет легче определиться с основной идеей вашего ремонта.





Также, в маленькой ванной дизайнеры советуют придерживаться некоторых правил, которые помогут увеличить ее зрительно:
- выбирайте материалы для отделки нейтральных светлых тонов, яркие акценты следует исключить;
- чем меньше отдельных предметов, тем ванная кажется шире, поэтому используйте встроенные ниши и шкафы, которые зрительно создают чистое пространство;
- на открытых полках следует хранить только самое необходимое, остальное убрать в шкафчики;
- освещение выгоднее делать встроенное или местную подсветку. Естественное освещение также способно увеличить пространство;
- используйте отражающие поверхности – зеркала, светоотражающую плитку. Полочки лучше делать стеклянными – они пропускают свет и делают помещение более воздушным;
- используйте мебель и дверь того же цвета, что и стены, тогда они визуально исчезнут и сделают помещение более объемным;
Последовательность работы
Если вы определились с планировкой, выбрали сантехнику и материалы можете приступать к ремонту своими руками.
Но учтите, что в ходе работы могут возникать непредвиденные обстоятельства. Основная проблема в том, что здания хрущевок уже довольно старые, стены ветхие, устаревшие сантехника и электрика, трубы изношенные. И если в здании давно не проводился хотя бы косметический ремонт — могут возникнуть проблемы с протечкой, замыканием электрики, ржавчиной или грибком.
Первый этап – демонтаж
Можно проводить полный или частичный демонтаж.
Если ремонт осуществляется без перепланировки, то демонтируются старые трубы, сантехника, очищаются стены. Если же запланирована перепланировка – то демонтируются стены. На этом этапе будет много грязи и пыли, поэтому рекомендуется изолировать другие помещения.

Второй этап – черновые работы. Штукатурка стен, монтаж полов и перегородок
Перед тем как укладывать плитку, нужно выровнять стены, сделать их прочными, подготовить поверхность стен к нанесению штукатурной смеси, очистить и покрыть грунтовкой.
Полы можно залить выравнивающей смесью, так называемыми наливными полами.

Третий этап – работы с сантехникой. Разводка труб, гидроизоляция
Для экономии места в санузле стены прорезают, для того чтобы спрятать в них трубы. В стены прячутся почти все трубы – водопроводные, канализационные, сливные.
Если трубы ранее не менялись или менялись, но это было очень давно, необходимо произвести замену труб. К моменту сантехнических работ должна быть закуплена уже вся сантехника. Для разводки труб нужно знать точные размеры, ванной или душевой, унитаза, раковины, осушителя для полотенец и другой сантехники.

На этом этапе работ вы можете также защитить себя от случайных протечек воды к соседям. Для этого можно уложить на ровную подготовленную поверхность по всей площади санузла гидроизоляцию.
Полиуретановая гидроизоляция образует герметичную емкость, которая не пропускает воду.
Четвертый этап – электромонтажные работы
Если ранее проводка не менялась, то имеет смысл ее заменить. Поскольку число электрических приборов с каждым годом растет, старая проводка не рассчитана на нынешний уровень энергопотребления и может потом принести вам много хлопот.
Пятый этап – чистовая отделка
Этот этап включает укладку плитки на пол и стены, покраску или монтаж потолка.
При выборе материалов для работы не следует забывать о качестве, поскольку ванная – это место где всегда повышена влажность воздуха, и от качества выбранных материалов зависит то, сколько времени прослужит вам новый ремонт.

Шестой этап – завершающий
Этап включает установку и подключение раковины, душевой кабины, смесителей, вентиляции, фильтра, обогревателя и других приборов.
Стоимость ремонта
Цена ремонта санузла зависит только от того, какие работы делать, а какие нет, будете ли вы делать ремонт своими руками или нанимать рабочих. А также от того какие материалы будут применены для работы.
Дороже всего обходится сантехника, трубы, подготовка стен под плитку и укладка плитки.
И если от дорогостоящей изысканной плитки можно отказаться, то трубами пренебрегать не стоит. В старом хрущевском санузле трубы менять придется однозначно. Даже потому, что старые трубы не выдержат отключений, подключений и перемещений сантехники.
От того, какую сантехнику вы выберете, будет также зависеть большая часть бюджета ремонта. Возможно, менять придется не всю сантехнику, и в этом случае можно сэкономить. Однако помните — сильно экономить на оборудование для ванной не стоит, поскольку из-за повышенной влажности некачественные материалы могут вам долго не прослужить.
Отделка стен может быть произведена плиткой либо декоративными панелями, панели помогут придать ванной приличный вид при маленьких затратах.

На пол можно положить новую плитку на старую, но это при условии, что пол ровный, если нет – придется выравнивать специальной смесью. Кстати, в ванной комнате хрущевки, теплый пол обойдется недорого, потому что площадь маленькая.
Оптимальный вариант для потолка – подвесной, в него удобно и легко устанавливаются светильники.

Установка вентилятора также является неотъемлемой частью, хорошая вентиляция воздуха сохранит бюджетные материалы от влажности и плесени.
И наконец, почти половину стоимости ремонта составляет работа, от того будете ли вы делать ремонт сами или нанимать бригаду зависит во сколько обойдется ваш ремонт.
Напоследок хотелось бы сказать, что за самостоятельный ремонт следует приниматься, основательно все продумав и взвесив. Если вы обладаете твердыми знаниями и навыками — тогда вперед, если же нет – то следует поручить это дело профессионалам.
Выбор сантехники следует проводить, основываясь на функциональности, эстетическим изыскам в санузле хрущевки разгуляться негде.
Из всего вышеперечисленного сделаем вывод, что если к ремонту санузла, даже такого маленького, подойти правильно и взвешенно, то это маленькое и многофункциональное помещение может стать еще и местом, где по утрам можно будет взбодрится и получить хороший заряд энергии, а вечером, расслабившись в ванной, избавится от всех хлопот тяжелого дня.
Соблюдение правил безопасности
Соблюдайте при работе такие правила:
уберите с места работы все, что мешает свободному проходу к трубопроводу;- уберите из ванны все розетки и провода;
- не забудьте перекрыть воду на стояке;
- не оставляйте паяльник без внимания и пользуйте специальной подставкой;
- не применяйте его рядом с легко возгораемыми предметами или жидкостями;
- надевайте на себя плотную одежду с руками и рабочую обувь, не забывайте надевать перчатки;
- при работе с перфоратором надевайте защитную маску.
Если вы все сделали правильно, то ваша разводка будет надежной, сможет защитить трубопровод от протечек, а также обеспечит бесперебойную и качественную работу всей сантехники в ванной комнате.
Какая разводка отопления лучше для частного дома?
Разводка отопления для частного дома зависит от многих факторов, таких как площадь дома, количество и расположение помещений, тип отопительной системы, наличие тепловой изоляции и т.д. Однако, можно рассмотреть несколько наиболее распространенных вариантов разводки отопления.
-
Однотрубная система с вертикальным подъемом. В этом случае горячая вода подается в одну трубу, проходящую через все помещения дома, а затем возвращается в котел по другой трубе. Это простая и дешевая разводка, но она может приводить к неодинаковому нагреву помещений и увеличению времени на достижение нужной температуры.
-
Двухтрубная система с горизонтальной разводкой. В этом случае каждое помещение имеет свою собственную трубу с горячей водой, и затем вода возвращается в котел через отдельную трубу. Эта система обеспечивает более равномерный нагрев и более быстрое достижение нужной температуры, но требует больших затрат на установку.
-
Радиаторная система. Это тип разводки, в котором горячая вода подается в радиаторы, установленные в каждом помещении, а затем вода возвращается в котел. Радиаторы могут быть разных размеров и форм, что позволяет легко регулировать температуру в каждом помещении. Радиаторная система обычно является наиболее эффективной и удобной в использовании, но также является наиболее затратной.
В идеале, выбор разводки отопления для частного дома должен основываться на характеристиках дома и потребностях его жителей. Рекомендуется проконсультироваться с профессионалом в области отопления, который сможет рассчитать оптимальный вариант для вашего дома.

уберите с места работы все, что мешает свободному проходу к трубопроводу;